Il s'agit de notre programme de fidélité grâce auquel vous profitez d'offres et d'avantages exclusifs dès votre première réservation effectuée sur SamBoat. Le SamBoat Club, c'est simple et gratuit !
Bienvenue sur Ariella, un superbe péniche dédié à la location. Fabriqué en 2022, le Woma D13 vous emmènera dans les plus beaux mouillages de .
Le péniche fait 14 mètres de longueur pour une puissance de 50 chevaux. Les 2 cabines permettent d'accueillir 7 personnes en navigation croisière.
Pour votre confort, Ariella possède 1 toilette avec douche
Il possède notamment les équipements suivants : Moteur d'annexe, Propulseur d'étrave, TV, Wifi et internet, Plateforme de bain , Lave vaisselle.
N'hésitez pas à nous contacter pour toute demande devis, vous serez accompagné par un expert SamBoat dans votre projet de vacances.
Activités
Famille
Details
Conditions de location
Type de location
Bateau seul
Horaires indicatives de début et fin de location :
13:00 / 09:00
Caution
1 200 €
(Gérée en direct par le propriétaire)
Gestion de la caution
Gestion de la caution: Gérée en direct par le propriétaire
Le propriétaire a choisi de gérer la caution en direct lors de la location. Ne versez pas de caution avant d’avoir vu le bateau et le propriétaire.
Conditions d'annulation
Personnalisées
Carburant
Non inclus
Bateau
Type de bateau
Péniche
Marque - Modèle
WOMA
-
Woma D13
Année de construction
2022
Capacité autorisée
7
Nombre de cabines
2
Nombre de toilettes
1
Longueur (m)
13,7
Largeur (m)
4,1
Tirant d'eau (m)
1
Puissance totale
50cv
(1 Moteur)
Capacité carburant
80 L
Réservoir d'eau douce
450 L
Animaux acceptés à bord
Non
Emplacement
Port
Autres départs possibles
Fürstenberg/Havel
Conditions d'annulation du Loueur
Conditions d'annulation:
Personnalisées
Hors frais de service SamBoat. Le remboursement de ceux-ci dépendent du motif et sont à la discrétion de la plateforme.
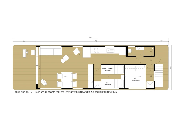
Plan du bateau
Promotions
Réductions supplémentaires
SamBoat Club
-5%
Les membres du SamBoat Club bénéficient de réductions supplémentaires sur une sélection de bateaux.
Découvrez le SamBoat Club
Promotions du propriétaire
04 - 18 juillet 2026
-10%
25 juillet - 01 août 2026
-10%
08 - 15 août 2026
-10%
29 août - 12 sept. 2026
-10%
12 sept. - 31 oct. 2026
-20%
Une question ?
Un expert est à votre disposition pour vous aider à organiser votre croisière.
2 189 €
par semaine
Durée minimale de location :
4 jours
Du 16 May
Au 22 May :
2 442 €
par semaine
Durée minimale de location :
4 jours
Du 23 May
Au 29 May :
2 442 €
par semaine
Durée minimale de location :
4 jours
Du 30 May
Au 05 June :
2 442 €
par semaine
Durée minimale de location :
4 jours
Du 06 June
Au 12 June :
2 442 €
par semaine
Durée minimale de location :
4 jours
Du 13 June
Au 19 June :
2 442 €
par semaine
Durée minimale de location :
4 jours
Du 20 June
Au 26 June :
2 849 €
par semaine
Durée minimale de location :
6 jours
Du 27 June
Au 03 July :
2 849 €
par semaine
Durée minimale de location :
6 jours
Du 04 July
Au 10 July :
3 069 €
par semaine
Durée minimale de location :
6 jours
Du 11 July
Au 17 July :
3 069 €
par semaine
Durée minimale de location :
6 jours
Du 18 July
Au 24 July :
3 289 €
par semaine
Durée minimale de location :
6 jours
Du 25 July
Au 31 July :
3 289 €
par semaine
Durée minimale de location :
6 jours
Du 01 August
Au 07 August :
3 289 €
par semaine
Durée minimale de location :
6 jours
Du 08 August
Au 14 August :
3 289 €
par semaine
Durée minimale de location :
6 jours
Du 15 August
Au 21 August :
3 069 €
par semaine
Durée minimale de location :
6 jours
Du 22 August
Au 28 August :
3 069 €
par semaine
Durée minimale de location :
6 jours
Du 29 August
Au 04 September :
2 849 €
par semaine
Durée minimale de location :
6 jours
Du 05 September
Au 11 September :
2 442 €
par semaine
Durée minimale de location :
6 jours
Du 12 September
Au 18 September :
2 442 €
par semaine
Durée minimale de location :
4 jours
Du 19 September
Au 25 September :
2 189 €
par semaine
Durée minimale de location :
4 jours
Du 26 September
Au 02 October :
2 189 €
par semaine
Durée minimale de location :
4 jours
Du 03 October
Au 09 October :
2 079 €
par semaine
Durée minimale de location :
4 jours
Du 10 October
Au 16 October :
2 079 €
par semaine
Durée minimale de location :
4 jours
Du 17 October
Au 23 October :
2 079 €
par semaine
Durée minimale de location :
4 jours
Du 24 October
Au 30 October :
2 079 €
par semaine
Durée minimale de location :
4 jours
Du 31 October
Au 06 November :
2 079 €
par semaine
Durée minimale de location :
4 jours
Du 07 November
Au 13 November :
2 079 €
par semaine
Durée minimale de location :
4 jours
Du 14 November
Au 20 November :
2 079 €
par semaine
Durée minimale de location :
4 jours
Du 21 November
Au 27 November :
2 079 €
par semaine
Durée minimale de location :
4 jours
Du 28 November
Au 04 December :
2 079 €
par semaine
Durée minimale de location :
4 jours
Du 05 December
Au 11 December :
2 079 €
par semaine
Durée minimale de location :
4 jours
Du 12 December
Au 18 December :
2 079 €
par semaine
Durée minimale de location :
4 jours
Du 19 December
Au 25 December :
2 079 €
par semaine
Durée minimale de location :
4 jours
Du 26 December
Au 31 December :
2 079 €
par semaine
Durée minimale de location :
4 jours
Le reste de l'année
:
2 079 €
par semaine
Durée minimale de location :
7 jours
Garantie du meilleur prix
Chez SamBoat, nous vous garantissons de vous proposer les offres au meilleur prix.
Vous avez trouvé cette annonce sur un autre site à un prix plus intéressant ? Retrouvez ci-dessous comment nous en informer pour que notre équipe dédiée puisse effectuer les vérifications nécessaires et revenir vers vous.
En réservant par SamBoat vous bénéficiez d’autres avantages exclusifs : une équipe d’experts du nautisme à votre écoute, des facilités de paiement, un programme fidélité vous offrant de multiples récompenses...
Pourquoi voulez-vous signaler cette annonce ?
Partager l'annonce Ariella
Texte copié dans le Presse-papier !
Copier/coller non supporté dans votre navigateur. Faire Ctrl+c pour copier votre annonce !